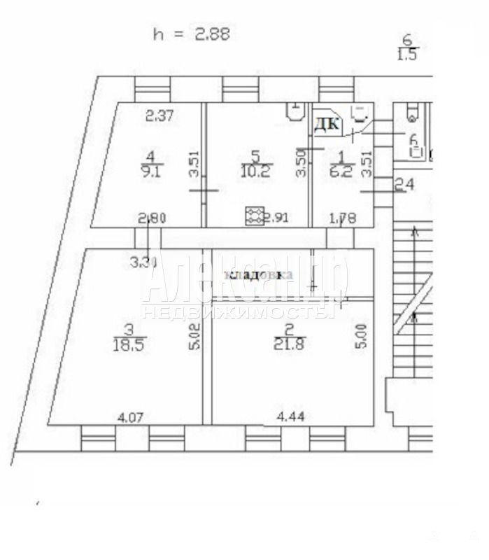
Продажа 3х-комнатной квартиры
- 67 м²
- Площадь
- 49.40 м²
- Жилая площадь
- 10.2 м²
- Площадь кухни
- 4/5
- Этаж
14 990 000 ₽
222 735 ₽ за м²
ID объявления 12281363
Поделиться
Добавить в избранное
1704398 Продаётся 3-х комнатная квартира в "Доме И. В. Аничкова", в историческом центре г. Санкт-Петербурга, метро Садовая, Спасская, Сенная площадь в пешей доступности.
Двухсторонняя планировка, все окна выходят в тихий закрытый двор, есть парковка.
Рядом Юсуповский сад, Фонтанка и набережная канала Грибоедова. Памятники архитектуры Санкт-Петербурга в пешей доступности.
В шаговой доступности 3 школы, 2 детских сада, 2 ТЦ.
Удобный выезд на Московский проспект.
Подъезд со двора, чистый и без запахов, прекрасные соседи.
Дата обновления: 3 декабря 2025