Продажа офисного помещения
Санкт-Петербург, р-н Центральный, ул 8-я Советская, 56литераА
8 195 200 ₽
81 952 ₽ за м²
- 100 м²
- Площадь
- -2/1
- Этаж
Код лота: 62C46C9-4001-7528-1. Реализуется на торгах.
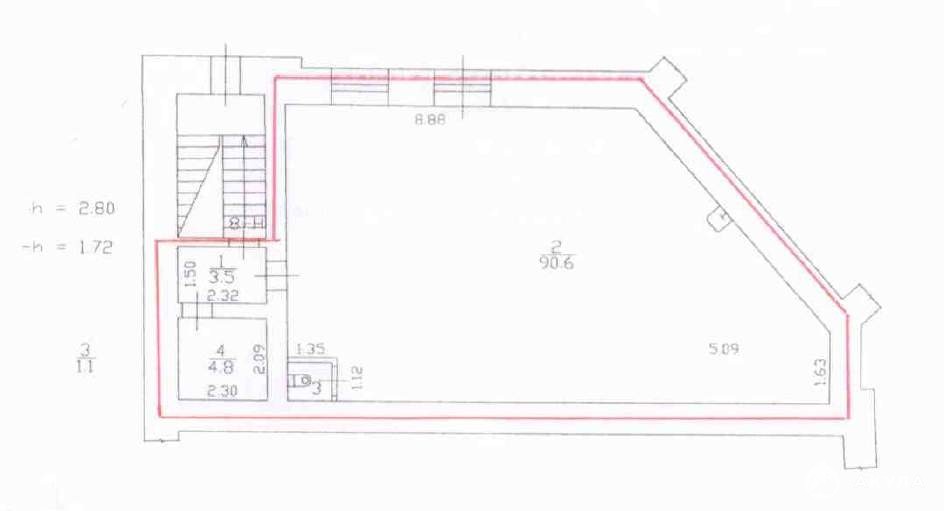
Продажа коммерческого помещения на 8-й Советской ул. Общая площадь: 100 кв. м. Кадастровый номер: 78: 31: 0001431: 3094. Собственность. Объект расположен в Центральном районе Санкт-Петербурга, на первой линии домов 8-й Советской ул. Окружение представлено жилой и общественно-деловой исторической застройкой города 18-20 вв, с включением множества объектов рекреации. В пешей доступности располагаются: школы, детские сады, магазины, аптеки, поликлиника, спортивная и детские площадки, кафе, рестораны и многое др. Подъезд к объекту возможен со стороны 8-й Советский и Кирилловской ул. В непосредственной близости от объекта уровень торгово-пешеходных и транспортных потоков средний. Хорошая транспортная доступность автомобильным и общественным транспортом. Ближайшая станция метро «Площадь Александра Невского-2» расположена на расстоянии 1, 5 км (около 15 минут пешком) . Остановка общественного транспорта располагается рядом с объектом, где курсируют маршруты автобусов и троллейбусов. Парковка легковых автомобилей возможна вдоль улиц и на дворовой территории возле объекта. Помещение расположено в подвале 4-х этажного жилого дома 1902 года постройки. Материал несущих стен кирпич. В помещении есть возможность подключения всех инженерных коммуникаций: электроснабжение, водоснабжение, теплоснабжение и канализация. Состояние требуется капитальный ремонт. Вход общий со двора (имеется погрузо-разгрузочная зона) , высота потолков 2, 80 м, окна 2 окна подвального типа. Транспортная доступность: - Станция метро «Площадь Александра Невского-2» - 1, 5 км; - Суворовский пр-кт 600 м; - Лиговский пр-кт 1, 1 км; - Синопская наб. 800 м; - Невский пр-кт 1 км. Варианты наилучшего использования: офисно-складская функция.
https: //catalog. lot-online. ru/index. php?dispatch=products. view&product_id=1474659
Дата обновления: 3 декабря 2025