Продажа офисного помещения
2 950 000 ₽
239 838 ₽ за м²
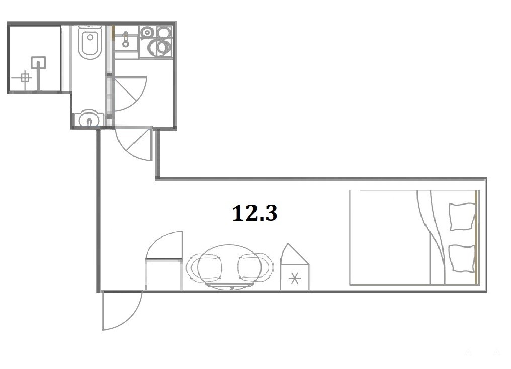
- 12 м²
- Площадь
- 10,3 м²
- Жилая площадь
- 2.00 м²
- Площадь кухни
- 1/6
- Этаж
Арт. 87879239. Продается коммерческое помещение с отдельным кадастровым номером в 10 минутах ходьбы от Невского проспекта.
Ищете идеальное место для вашего бизнеса? Или подыскиваете вариант с пассивным доходом? Это предложение — именно то, что вам нужно!
Локация:
Удобное расположение —рядом остановки общественного траспорта, ближайшие станции метро Маяковская/ Площадь восстания и Чернышевская. Локация пользуется большим спросом у туристов.
О ПОМЕЩЕНИИ:
Площадь: 12, 3 м², что идеально подходит для создания уютного и функционального рабочего пространства.
Наличие собственного санузла делает помещение отличным вариантом для маникюрного или массажного салона.
Пространство также отлично подойдет для организации бухгалтерии, небольшого консалтингового агентства, дизайн-студии и других видов деятельности.
Возможность регистрации вашей компании по данному адресу.
Текущая деятельность:
В данный момент помещение функционирует как номер в апарт-отеле, но новый собственник может адаптировать его под свои нужды и желания.
Коммуникации:
Все необходимые коммуникации уже подключены.
Имеются отдельные счетчики на воду и электричество — никаких лишних затрат!
Не упустите шанс стать владельцем этого коммерческого помещения в сердце города! Звоните сейчас, чтобы узнать больше и записаться на просмотр!
Дата обновления: 27 сентября 2025