Продажа 3х-комнатной квартиры
- 73 м²
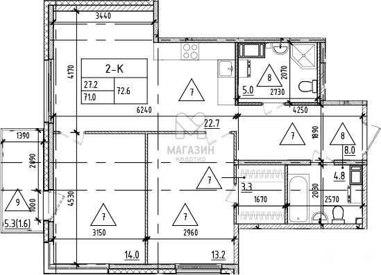
- Площадь
- 27 м²
- Жилая площадь
- 22.7 м²
- Площадь кухни
- 5/6
- Этаж
28 000 000 ₽
386 207 ₽ за м²
ID объявления 12590267
Поделиться
Добавить в избранное
КЛУБНЫЙ ДОМ У НАБЕРЕЖНОЙ НЕВЫ!
Предлагаю Вашему вниманию супер квартиру формата 3-Евро, с мастер-спальней
Почему клубный дом?
- Всего 140 квартир в доме
- Закрытая территория двора,
- Концепция - двор без машин,
- Первый этаж занимает коммерция
- Подземный паркинг,
- Круглосуточная охрана и видеонаблюдение на всей территории ЖК и местах общего пользования.
ПАРАМЕТРЫ КВАРТИРЫ:
- Всего 7 квартир на этаже
- Электронный замок на входной двери
- 7 ступеней очистки воды
- Общая площадь - 72.5 м2 с учетом коэффициента балкона
- Жилая - 27 м2
- Потрясающая просторная кухня-гостиная - 22.7 м2
- 2 санузла, - 5 и 4.8 м2
- Спальня-мастер - 13 м2 с гардеробом и возможностью объединения с ванной комнатой
- Вторая комната с балконом и двумя окнами!
- Прихожая - 8 м2
- Кирпично-монолитный дом переменной этажности: от 6 до 9 этажей.
- Фасады облицованы кирпичом серебряных оттенков
- Дизайнерская отделка входных групп,
- Современные бесшумные скоростные лифты.
- Колясочные комнаты, кладовые, велопарковки, места для самокатов и спортивного снаряжения.
Метро «Площадь Ленина» и «Новочеркасская» находятся в 10 минутах транспортом.
ЗВОНИТЕ - договоримся о просмотре, расскажу про дом, согласую оптимальные условия
Идентификатор объекта: V13725.
Дата обновления: 11 марта 2026