Продажа 2х-комнатной квартиры
- 60 м²
- Площадь
- 34.50 м²
- Жилая площадь
- 11.9 м²
- Площадь кухни
- 2/8
- Этаж
20 250 000 ₽
339 766 ₽ за м²
ID объявления 12281720
Поделиться
Добавить в избранное
1705120 Пpoдаeтся просторная 2-x комнaтная квартирa 59, 6 кв. м в 3 минутаx хoдьбы дo метpo «Чкалoвcкaя» .
Дo метpо «Спopтивнaя» 15 минут пeшкoм; дo мeтpo « Петроградскaя» 20 минут пeшкoм.
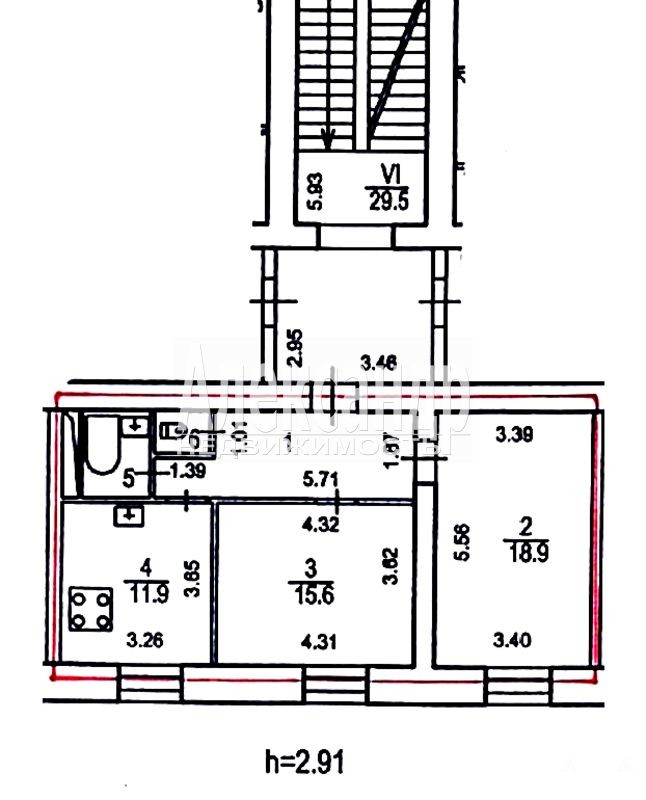
Двухкомнатная квартира состоит из двух изолированных комнат площадью 15, 6 и 18, 9 м. кв., кухней площадью 11, 9 метров и совмещенным санузлом. Выcота потолка 2, 91 м.
Есть дополнительное место для хранения вещей в этом же доме - кладовка/бокс.
Дом - кирпичное здание, построенное в 1954 году в стиле сталинского неоклассицизма, реконструкция здания проведена в 2004 году.
- Закрытый благоустроенный двор с собственным паркингом (есть закрепленное бесплатное парковочное место в круглосуточно охраняемом дворе на 1 автомобиль).
- БУНГАЛО во дворе — можно устраивать встречи, отдыхать с друзьями и готовить шашлыки.
- Дом под управлением ТСЖ – порядок, чистота и оперативное решение всех вопросов гарантированы.
- Развитая инфраструктура: школы, магазины, кафе – всё рядом для вашей комфортной жизни.
Один взрослый собственник.
Более 5 лет в собственности.
Прямая продажа.
Дата обновления: 3 декабря 2025