Продажа 1-комнатной квартиры
Новокрестовская, 27 мин
Беговая, 33 мин
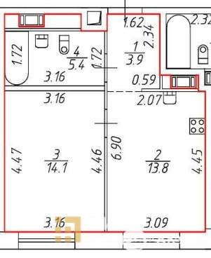
- 37 м²
- Площадь
- 14.1 м²
- Жилая площадь
- 13.8 м²
- Площадь кухни
- 3/18
- Этаж
15 300 000 ₽
411 291 ₽ за м²
ID объявления 12406243
Поделиться
Добавить в избранное
Арт. 16072946. СДАННЫЙ ДОМ, обременений нет, полная стоимость в договоре.
ЗАПИСЫВАЕМ НА ПОКАЗЫ!
В продажеот юридического лица просторная однокомнатнаяквартира в ЖК "Glorax Василеостровский" в Василеостровском районе Санкт-Петербурга. Квартира общей площадью 37, 2кв.м. просторная кухняи жилая комната. Расположена на 3этаже, с которого открывается прекрасный вид на залив. В квартире выполнена отделка White Box, это прекрасный вариант для тех, кто любит минимализм, а также для тех, кого захлестнет полет фантазии и желание привнести в квартиру ярких красок!
Инфраструктура
Для жителей будут созданы все условия для комфортного проживания: безопасные детские площадки, отапливаемый паркинг, закрытый двор без машин, помещения для колясок и велосипедов, прогулочные зоны.
В жилом комплексе предусмотрена система «Умный дом» (IP-домофоны, видеонаблюдение на всей территории комплекса, удаленное открытие парадной через приложение, усилитель сотового сигнала на территории паркинга и входных групп, автоматическая передача показаний приборов учета (вода, тепло, электричество) в мобильном приложении) .
Рядом, частные/государственные детские сады и школы, лучшие в стране высшие учебные заведения, а также арт-пространства и музеи.
Доступность
Транспортную доступность обеспечивает близость к ЗСД. А также, в 10 минутах езды на транспорте расположено метро «Приморская». До Стрелки В. О. , Дворцовой площади, Исаакиевского собора 20 минут на авто.
Звоните! С удовольствием ответим на все интересующие вас вопросы!
Дата обновления: 23 января 2026