Продажа 2х-комнатной квартиры
Санкт-Петербург, Бухарестская улица, 146к3, подъезд 4
- 57 м²
- Площадь
- 32.50 м²
- Жилая площадь
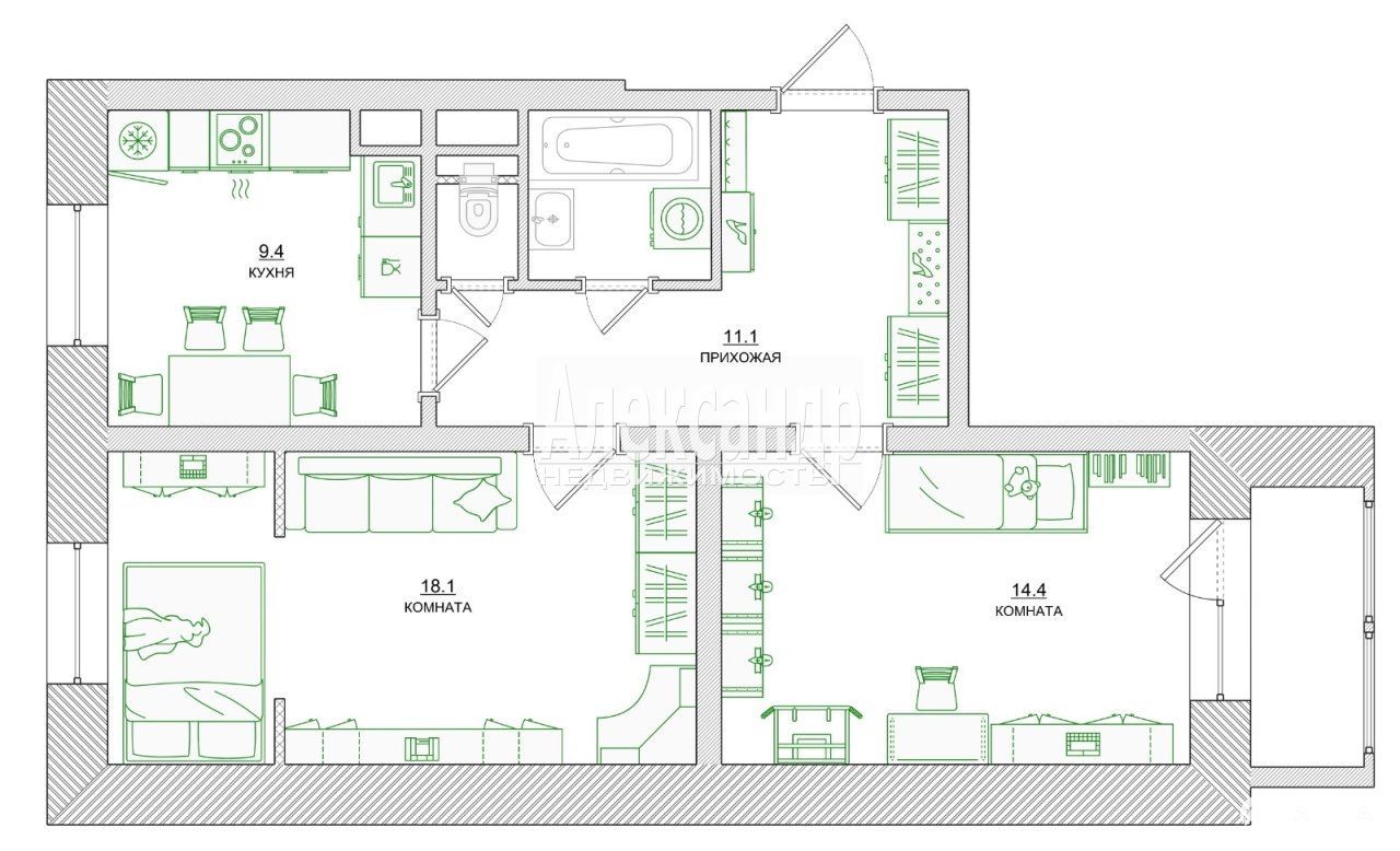
- 9.4 м²
- Площадь кухни
- 5/12
- Этаж
14 500 000 ₽
255 282 ₽ за м²
ID объявления 12281424
Поделиться
Добавить в избранное
1704557 Продается 2-х комнатная квартира, расположенная в добротном, кирпичном доме (застройщик RBI) в шаговой доступности от метро.
1. Расположение:
- Рядом станция метро "Дунайская" (14 минут пешком)
- Развитая инфраструктура района: магазины, школы, музыкальная школа, детсады, кафе, рестораны, медицинские учреждения, больницы и др. соц.объекты в шаговой доступности.
2. Технические характеристики:
- Общая площадь квартиры: 56, 8 м²
- Площадь кухни: 9, 4 м²
- Размеры комнат: 18, 1 м² и 14, 4 м²
- Застекленный балкон площадью 2, 65 м²
3. Ремонт и отделка:
- Качественный ламинат 33 класса в жилых помещениях
- Керамогранит на кухне, в коридоре, туалете и ванной комнате
- Ванна облицована кафелем, установлен унитаз "Geberit" с инсталляцией
4. Комфорт и безопасность:
- Закрытая придомовая территория с охраной 24 часа в сутки
- Система видеонаблюдения
- Управление домом осуществляется товариществом собственников жилья (ТСЖ)
5. Дополнительные бонусы:
- Продаётся вместе с мебелью и техникой
- Любая форма расчетов, возможна ипотека
- Один взрослый собственник, без обременений и перепланировок
- Возможность просмотра квартиры в любое удобное для Вас время
Дата обновления: 24 декабря 2025