Продажа 1-комнатной квартиры
Санкт-Петербург, Коломяжский просп., д 13
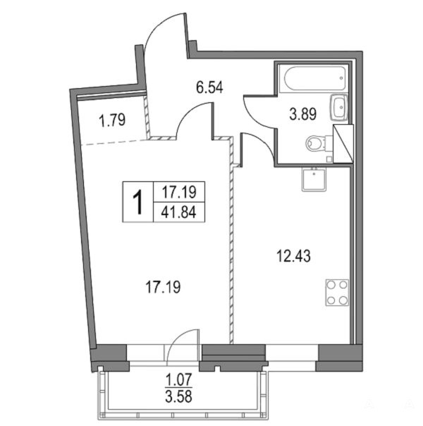
- 42 м²
- Площадь
- 17.19 м²
- Жилая площадь
- 12.43 м²
- Площадь кухни
- 8/12
- Этаж
13 600 000 ₽
325 048 ₽ за м²
ID объявления 8269327
Поделиться
Добавить в избранное
№324872 Санкт-Петербург, Приморский р-н, метро Пионерская, Коломяжский просп., 13
Продается большая 1- комнатная квартира в ЖК «Приморский квартал»
Есть 3 детских сада на 460 мест, школа на 1500 мест и кабинет семейного врача.
На первых этажах коммерческие помещения для размещения магазинов, аптек, кафе, салонов красоты, банковских отделений, а также деловой центр. Для владельцев автомобилей предусмотрены наземные и подземные паркинги, а также открытые места на улице — всего более 4 000 мест. Придомовая территория благоустроена местами для отдыха и прогулок, а также спортивными и детскими площадками.
Жилой комплекс находится в Приморском районе. В пешей доступности расположены, торговые центры, магазины, отделения почты и банков, спортивные центры и медицинские учреждения. В районе находится Удельный парк и место дуэли Пушкина. Метро «Пионерская» расположено в 10 минутах пешком.
Ждем Вас на просмотр!
Дата обновления: 18 августа 2025