Продажа торговой площади
Санкт-Петербург, р-н Выборгский, пр-кт Художников, 30к1литераА
39 926 273 ₽
147 113 ₽ за м²
- 271 м²
- Площадь
- 1/1
- Этаж
Код лота: 62C46C9-4001-7882-1. Реализуется на торгах.
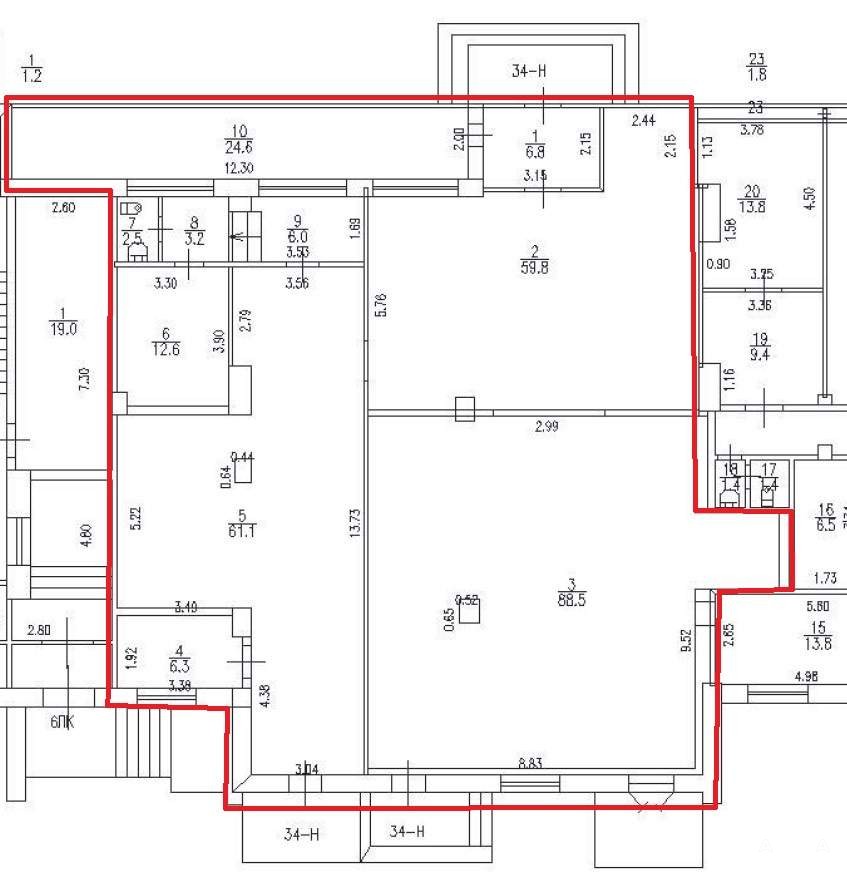
Продается торговое помещение в густонаселенном Выборгском районе недалеко от ст. м "Пр. Просвещения". Адрес: г. Санкт-Петербург, пр. Художников, д. 30, корп. 1, литера. А, пом. 34-Н. Общая площадь: 271, 4 кв. м Кадастровый номер: 78: 36: 0005516: 4829 Этаж: 1 (всего 10 этажей) Вход: 2 отдельных с улицы, отдельный со двора Окна: витринные на улицу и во двор Состояние помещения: хорошее Инженерные коммуникации: электроснабжение, водоснабжение, канализация, отопление. Помещение в собственности АО «Почта России». Обременения (ограничения) : аренда (до 25.11.2025) . Окружение и транспортная доступность Помещение расположено в густонаселенном спальном районе города. Парковка легковых автомобилей осуществляется на придомовой и дворовой территории. Ближайшая станция метро «Проспект Просвещения» расположена на расстоянии 1, 5 км (17 минут пешком) . Рядом с помещением расположена остановка общественного транспорта.
https: //catalog. lot-online. ru/index. php?dispatch=products. view&product_id=1588644
Дата обновления: 31 декабря 2025