Продажа 3х-комнатной квартиры

Санкт-Петербург, Пулковская ул., 6, к 3

Звёздная, 5 мин

Купчино, 22 мин

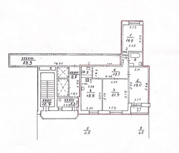
94 м²
Площадь
55.4 м²
Жилая площадь
19 м²
Площадь кухни
5/14
Этаж

24 990 000 ₽

265 852 ₽ за м²

ID объявления 12064129

Поделиться

Добавить в избранное

К вашему вниманию большая 3-х комнатная уютная квартира <br> в доме класса «Комфорт» в жк "Золотая долина"! Квартира <br>расположена в престижном Московском районе с хорошо развитой <br> инфраструктурой и отличной транспортной доступностью. <br>До метро «Звездная» всего 7 минут пешком. До центра 20 минут на <br>метро. Идеальное место для проживания. В шаговой доступности <br>магазины, рестораны, школы, д/сады, кафе, уютные дворы, детские <br>площадки, торговый комплекс с кинотеатром, поликлиники, роддом, <br>фитнес клубы, один достраивается в 2 минутах от дома. <br> Дом кирпичный, 2004 года, высота потолков 2.70м, свое ТСЖ, <br>консьерж, видеонаблюдение. В квартире хороший ремонт нулевых <br>годов, чисто , аккуратно, одна ванная с санузлом и отдельный санузел, <br>где установлена раковина, стеллаж, стиральная машина. <br> Большая часть мебели остается новым владельцам. В квартире <br> отличная планировка, окна на обе стороны, комнаты просторные, <br>изолированные , правильной формы. Комната - 22 м, комната - 14 м, <br> комната - 19 м с лоджией. Большая кухня 19 м со встроенной <br>техникой и мебелью из массива, можно принимать гостей. <br>Большой коридор. В подъезде чисто, дверь на этаж закрывается, недавно <br> сделан косметический ремонт. <br> Для реальных покупателей уместен торг. Квартира в собственности <br>одного взрослого более 5 лет, ранее не продавалась. Чистая история. <br>Легкая встречная покупка. <br> <br>Добро пожаловать на просмотры! <br>Арт. 117601559

Дата обновления: 20 марта 2026