15 469 ₽/мес

11 389 ₽ за м²/год

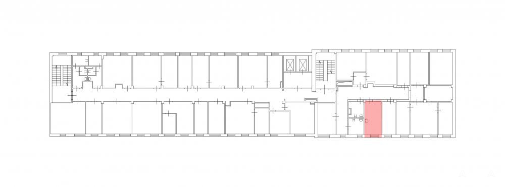
16 м²
Площадь
2
Этаж

Поделиться

Добавить в избранное

В аренду сдаётся помещение площадью 16.3 кв. м под чистый склад у станции метро "Василеостровская".

2-й этаж БЦ "Урал Плаза".
На этаже есть два грузо-пассажирских г/п 1000 кг (1100х2020х2100).

Оснащение: выделенная электроэнергия, освещение, отопление, пожарная сигнализация.
Высокий уровень безопасности на объекте обеспечивают круглосуточная охрана и система контроля и управления доступом.
Дополнительные услуги: высокоскоростной интернет и цифровая телефония.

Дата обновления: 1 декабря 2025