Аренда складского помещения

301 463 ₽/мес

15 709 ₽ за м²/год

230 м²
Площадь
1
Этаж

Поделиться

Добавить в избранное

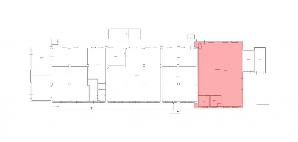
Прямая аренда производственно-складского помещения в технопарке "Нарвский".
Адрес: ул. Швецова, д. 41, лит Ж.
Площадь помещения - 230.3 кв. м.

Отдельный вход в помещение с территории технопарка.
Собственные ворота 2, 90 х 2, 90 м.
Высокие потолки - 5.3 метра.
Полы ровные, бетонные.

Проведены все необходимые коммуникации - электричество 15 кВт, ХВС и канализация.
Установлена пожарная сигнализация.

Действует система СКУД.
Полностью охраняемая территория, проход осуществляется по магнитным картам.
Возможен круглосуточный режим работы.

В стоимость входит НДС 20%.

Для получения более подробной информации и записи на просмотр - обращайтесь к менеджерам колл-центра!

Дата обновления: 17 декабря 2025