Аренда складского помещения

42 125 ₽/мес

9 109 ₽ за м²/год

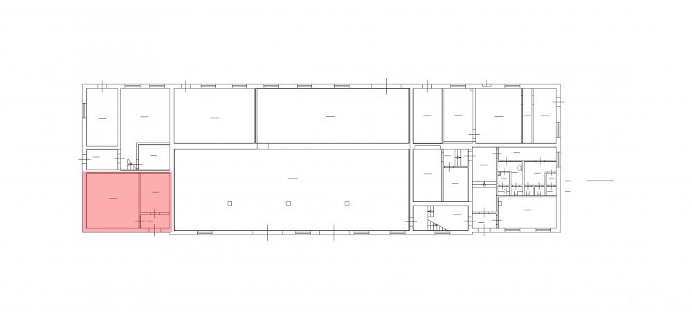
56 м²
Площадь
1
Этаж

Поделиться

Добавить в избранное

Собственник предлагает в аренду небольшой склад площадью 55.5 кв. м во Фрунзенском районе города.

Первый этаж здания на ул. Салова, д. 56.

Отдельный вход.
Ворота 2 х 0, 9 м.
Высота потолка 4.25 м, бетонный пол.
Оснащение: отопление, освещение, выделенная электрическая мощность 13 кВт (380В).

Охрана 24 часа.
Проход осуществляется по электронным картам доступа.
Инфраструктура: парковка и столовая на территории.

Для получения более подробной информации свяжитесь с колл-центром.

Дата обновления: 29 ноября 2025