Аренда складского помещения

99 316 ₽/мес

8 341 ₽ за м²/год

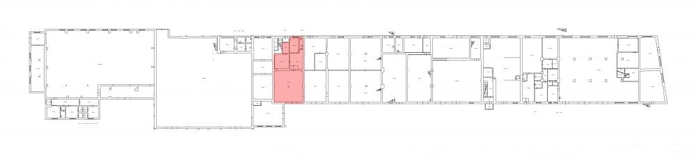
143 м²
Площадь
1
Этаж

Поделиться

Добавить в избранное

Аренда тёплого склада площадью 142, 9 кв. м по адресу: ул. Салова, дом 45.

Первый этаж.
Высота потолка 2.66 - 7.62 м, бетонный пол.
Ворота 2, 20*2, 20 м.

Оснащение: выделенная электрическая мощность 10 кВт, ХВС, водоотведение.
Коммуникации: интернет и цифровая телефония (возможно подключение по запросу).

Действует система СКУД.
Проход осуществляется по электронным картам доступа.

Возможен круглосуточный режим работы.

Дата обновления: 11 февраля 2026