Аренда складского помещения

78 321 ₽/мес

10 669 ₽ за м²/год

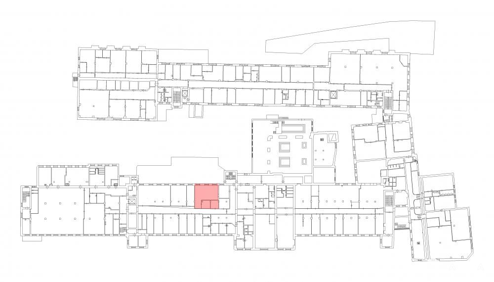
88 м²
Площадь
2
Этаж

Поделиться

Добавить в избранное

Аренда помещения под склад в Кировском районе города.
Общая площадь 88, 1 кв. м.
Адрес: ул. Промышленная, дом 5, этаж 2.

Есть грузовой 2, 5*2, 3*2, 2 м , г/п 3 т.
Пол - бетонный, стены - газобетонные.
Высота потолка 3, 5 м.

В помещение заведены высокоскоростной интернет, цифровая телефония.
Есть все необходимое оснащение: отопление, освещение, пожарная сигнализация.

Объект под круглосуточной охраной.
Проход/проезд по пропускам.

Дата обновления: 18 ноября 2025