Аренда складского помещения

50 091 ₽/мес

10 188 ₽ за м²/год

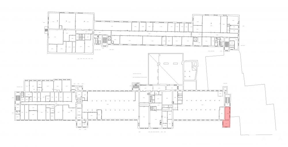
59 м²
Площадь
3
Этаж

Поделиться

Добавить в избранное

Сдаётся в аренду офисный блок площадью 59 кв. м у станции метро "Нарвская".

3-й этаж здания на Промышленной ул., дом 5.
Кабинетная планировка.

Услуги: круглосуточная охрана, парковка.

Действует система СКУД.
Проход осуществляется по электронным картам доступа.
Возможен круглосуточный режим работы.

Дата обновления: 30 октября 2025

Помещение Офисно-складское