49 489 ₽/мес

8 388 ₽ за м²/год

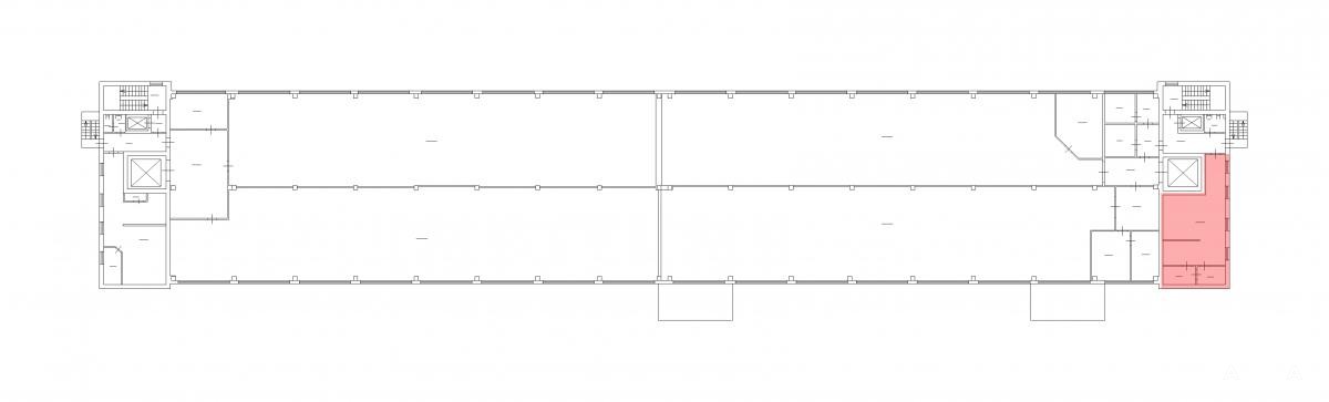
71 м²
Площадь
3
Этаж

Поделиться

Добавить в избранное

Предлагаем в аренду блок помещений под чистый склад в пешей доступности от станции метро "Площадь Ленина".
Третий этаж.

Оснащение: выделенная электроэнергия, освещение, отопление, пожарная сигнализация.
На этаже есть лифт.
  
Удобный подъезд для грузового транспорта.
Для удобства арендатора на объекте работают столовые, магазины, парковка.

В комплексе ведется круглосуточная охрана, проход осуществляется по магнитным картам доступа.
Возможен круглосуточный режим работы.

Дата обновления: 10 сентября 2025