67 211 ₽/мес

9 229 ₽ за м²/год

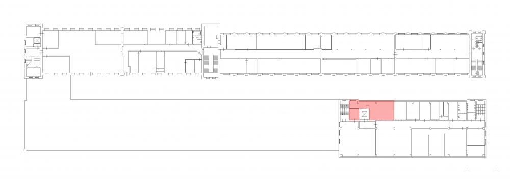
87 м²
Площадь
2
Этаж

Поделиться

Добавить в избранное

Собственник предлагает в аренду тёплый склад у станции метро "Площадь Ленина".

Площадь помещения - 87.4 кв. м.
2-й этаж здания на ул. Комсомола, дом 1-3.

Проведены необходимые инженерные коммуникации: выделенная электроэнергия, отопление, освещение и пожарная сигнализация.
Высокие потолки (4, 26 м).

Безопасность обеспечена круглосуточной охраной.
Проход осуществляется по электронным картам доступа.

Для комфортной работы на территории есть столовая, парковка.

Дата обновления: 15 ноября 2025