Аренда складского помещения

Обухово, 15 мин

Шушары, 17 мин

Дунайская, 27 мин

1 018 710 ₽/мес

19 654 ₽ за м²/год

622 м²
Площадь
1/1
Этаж

Это объявление снято с публикации.

Если это ваше объявление, восстановите его в личном кабинете или подайте новое.

В ином случае, вы можете перейти на главную или поискать другие предложения.

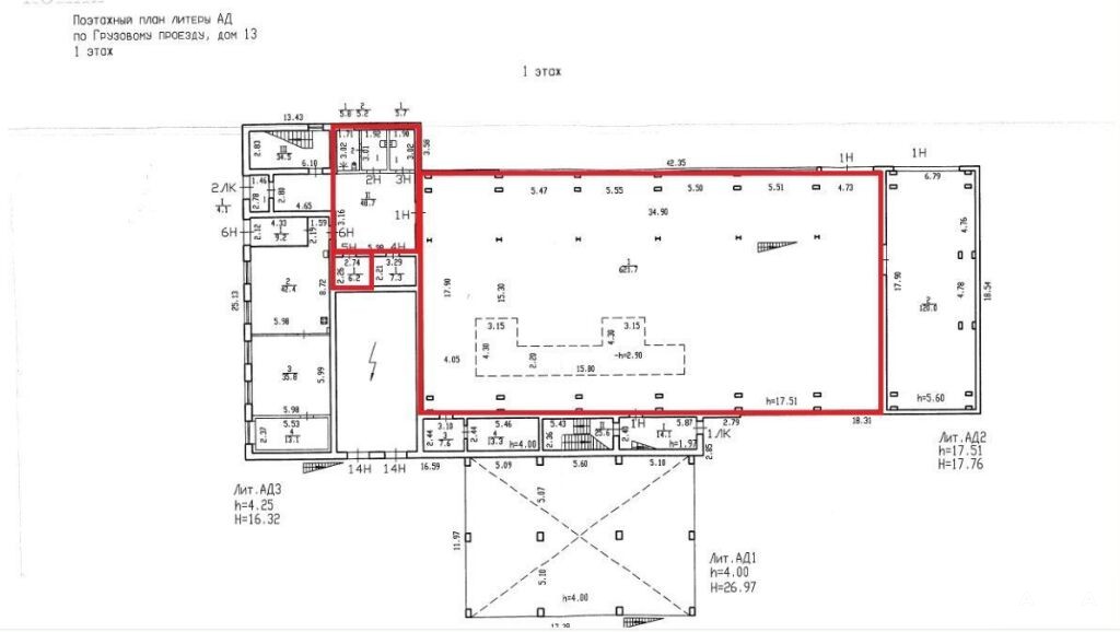
Арт. 83316203. Сдается склад-производство с кран-балкой

Площади и стоимость:

Склад: 621, 7 кв.м. – 1 200 руб./кв.м. (итого: 746 040 руб.)

Покрытие пола: асфальт (нижний слой – бетон)



Высота потолков: 17, 5 м (подходит для стеллажного хранения)



Температура: +15°C



Ширина здания: 18 м



Кран-балка: 3, 2 т (межрельсовая – 9, 2 м + вылет балки по 0, 3 м с каждой стороны)





Прилегающая территория: 800 кв.м. – 250 руб./кв.м. (итого: 200 000 руб.)



Бытовые помещения: 55, 9 кв.м. – 1 300 руб./кв.м. (итого: 72 670 руб.)

Отдельный вход с административной части здания



Мокрые точки (удобно для персонала)





Коммуникации:

Электричество: 300 кВт (тариф: 11 руб./кВт)



Отопление: оплата расчетным методом (от 70 000 руб. в ноябре до 220 000 руб. в январе)



Вода, электроэнергия, отопление – оплачиваются отдельно



Особенности:

Большие окна – естественное освещение



Расположен на промплощадке с пропускной системой



Прямая аренда от собственника (без комиссий)



Общая стоимость аренды: 1 018 710 руб./мес.

Дата обновления: 16 апреля 2026