111 141 ₽/мес

9 589 ₽ за м²/год

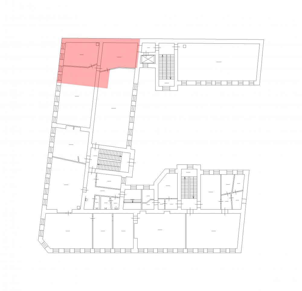
139 м²
Площадь
2
Этаж

Поделиться

Добавить в избранное

Аренда помещения под ЧИСТЫЙ СКЛАД у станции метро "Площадь Восстания".

Площадь помещения- 139, 1 кв. м.
Высота потолка 4, 25 м, на полу линолеум.

Помещение оснащено: выделенной электрической мощностью, освещением, отоплением.
На территории действует система контроля и управления доступом: ведётся круглосуточная охрана территории, проход осуществляется по магнитным пропускам.

Звоните и специалисты колл-центра ответят на ваши вопросы и подберут удобное время для просмотра.

Дата обновления: 29 августа 2025