Аренда производственного помещения

44 792 ₽/мес

12 588 ₽ за м²/год

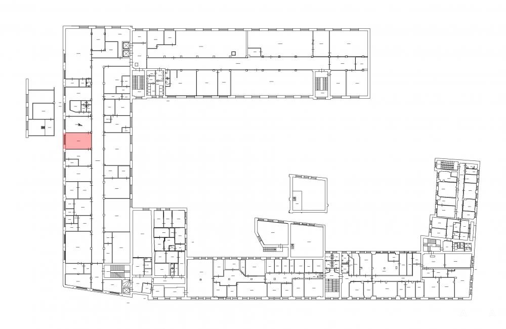
43 м²
Площадь
2
Этаж

Поделиться

Добавить в избранное

Рядом с метро "Звенигородская" сдается в аренду помещение под творческую мастерскую.
Адрес: Звенигородская улица, дом 9-11, БЦ "Иван Федоров", 2 этаж.

Услуги: интернет, телефония.
Оснащение: отопление, освещение, пожарная сигнализация.

На территории работает кафе.
Для удобства арендаторов имеется парковка.

В стоимость аренды включен НДС.

Дата обновления: 16 декабря 2025