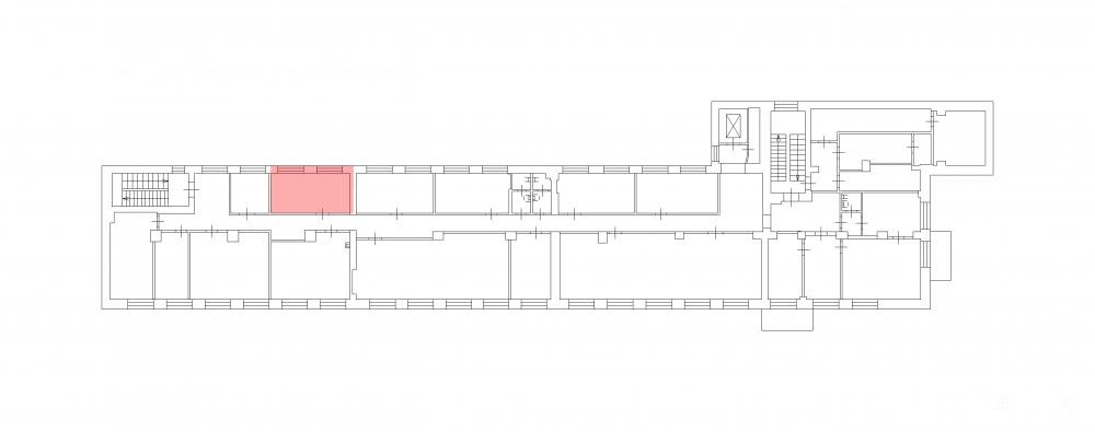
Аренда производственного помещения
23 594 ₽/мес
11 749 ₽ за м²/год
- 24 м²
- Площадь
- 2
- Этаж
Сдаётся в аренду помещение под небольшое производство на Уральской улице, дом 19.
Оснащение: отопление, освещение, пожарная сигнализация.
2-й этаж здания.
Есть пассажирский лифт г/п 630 кг.
Кабинетная планировка.
Ведётся круглосуточная охрана, проход на территорию осуществляется по магнитным картам доступа.
Охрана 24 часа.
На территории есть столовая.
Дата обновления: 14 октября 2025