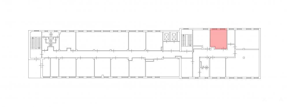
Аренда производственного помещения
23 727 ₽/мес
10 704 ₽ за м²/год
- 27 м²
- Площадь
- 6
- Этаж
По адресу: ул. Уральская, дом 19 в аренду сдаётся помещение под ПРОИЗВОДСТВО.
6-й ЭТАЖ здания.
ОСНАЩЕНИЕ: освещение, отопление, выделенная электроэнергия.
Попасть на объект можно только по электронным картам доступа.
Ведётся круглосуточная охрана.
Рядом расположены набережная Макарова, станции метро "Спортивная" и "Василеостровская".
Дата обновления: 6 августа 2025