Аренда производственного помещения

15 181 ₽/мес

9 588 ₽ за м²/год

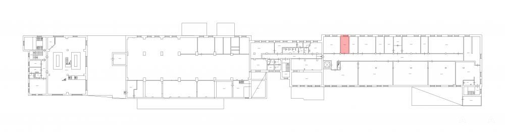
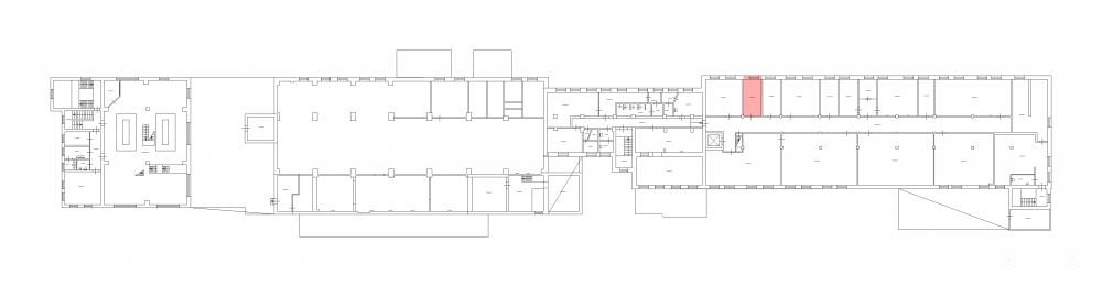
19 м²
Площадь
2
Этаж

Поделиться

Добавить в избранное

Предлагаем производственное помещение 19 кв. м в аренду.
Адрес: ул. Швецова, д. 41, 2 этаж, технопарк "Нарвский".

Прекрасный вариант для размещения небольшого швейного цеха.
Высокие потолки 5, 6 – 6, 1 м позволяют организовать многоярусное стеллажное хранение материалов и готовых изделий.
Лифт грузоподъёмностью 300 кг упрощает разгрузочно-погрузочные работы.
Технопарк расположен в зоне отличной транспортной доступности для удобной логистики.

В помещении есть инженерное оснащение для вашего удобства: отопление, пожарная сигнализация.

Высокоскоростной интернет и цифровая телефония подключаются по запросу арендатора.
Также дополнительно предоставляем доступ на охраняемую парковку.

Для удобства арендаторов на территории технопарка есть столовая.

Ведётся круглосуточная охрана и видеонаблюдение.
Действует контрольно-пропускная система.

В пешей доступности находится станция метро "Нарвская" и автобусные остановки.
Рядом расположен удобный съезд на улицу Швецова с проспекта Стачек, а также с улицы Маршала Говорова.

Предлагаемая площадь сдаётся напрямую от собственника.
Готовы рассмотреть другой вид производства для размещения.

Дата обновления: 26 ноября 2025