Аренда производственного помещения

14 858 ₽/мес

9 384 ₽ за м²/год

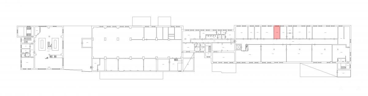
19 м²
Площадь
2
Этаж

Поделиться

Добавить в избранное

Собственник предлагает в аренду помещение под мастерскую у станции метро "Нарвская".
Помещение площадью 19 кв. м расположено на 2-м этаже здания на ул. Швецова, д. 41.

Высота потолка 5.60 м, на полу кафель, грузовой лифт.
Услуги: выделенная электроэнергия, отопление, освещение, пожарная сигнализация.
Удобный подъезд для грузового транспорта.

Территория круглосуточно охраняется.

В стоимость аренды входит НДС.

Дата обновления: 3 сентября 2025