Аренда производственного помещения

130 984 ₽/мес

10 788 ₽ за м²/год

146 м²
Площадь
3
Этаж

Поделиться

Добавить в избранное

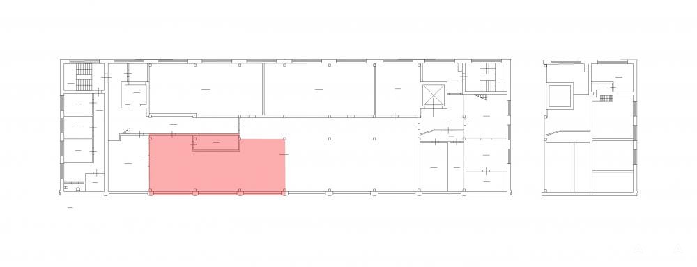
Предлагается в аренду помещение под столярную мастерскую.
Кировский район, метро Нарвская, улица Швецова, дом 38, 3 этаж.

Площадь помещения- 145, 7 кв. м.
Полы бетонные.
Потолки- 4, 3 м.

На этаж идет грузовой лифт г/п 2 тонны.
Из коридора в помещение ведут две противопожарные двери.
С/у на этаже.

Оснащение:
*Отопление.
*Освещение.
*Пожарная сигнализация.

Коммуникации:
*Интернет.
*Цифровая телефония.

Возможно подключить интернет.
Осуществляется круглосуточная охрана.

Дата обновления: 24 сентября 2025