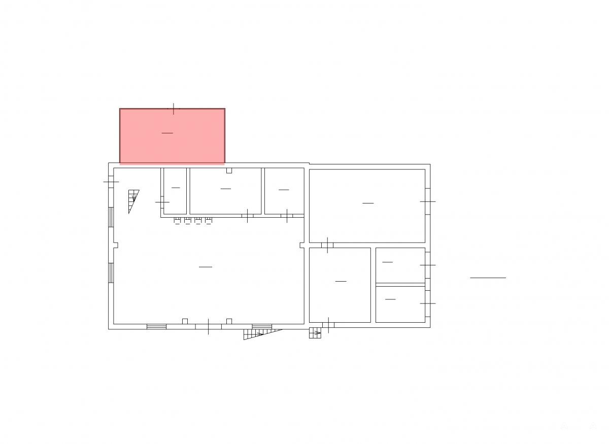
Аренда производственного помещения

21 145 ₽/мес

7 189 ₽ за м²/год

35 м²
Площадь
1
Этаж

Поделиться

Добавить в избранное

Аренда производственного помещения на территории технопарка "Шаумяна".

1-й этаж здания.
Отдельный вход.

Характеристики помещения: потолки высотой 3.06 м, ровный бетонный пол и стены из профнастила позволят разместить необходимое оборудование, а энергоресурсы наладят бесперебойную работу.

Высокий уровень безопасности на объекте обеспечивается круглосуточной охраной и действующей системой контроля и управления доступом.
На территории оборудована парковка для сотрудников и посетителей, есть кафе и терминалы оплаты услуг.

Здание расположено в шаговой доступности от станции метро "Бухарестская", рядом проходят улица Салова, Софийская улица и Витебский проспект. Такое удачное местоположение позволяет легко добираться до объекта как на общественном, так и на личном транспорте.

Дата обновления: 11 февраля 2026