Аренда производственного помещения

67 636 ₽/мес

8 029 ₽ за м²/год

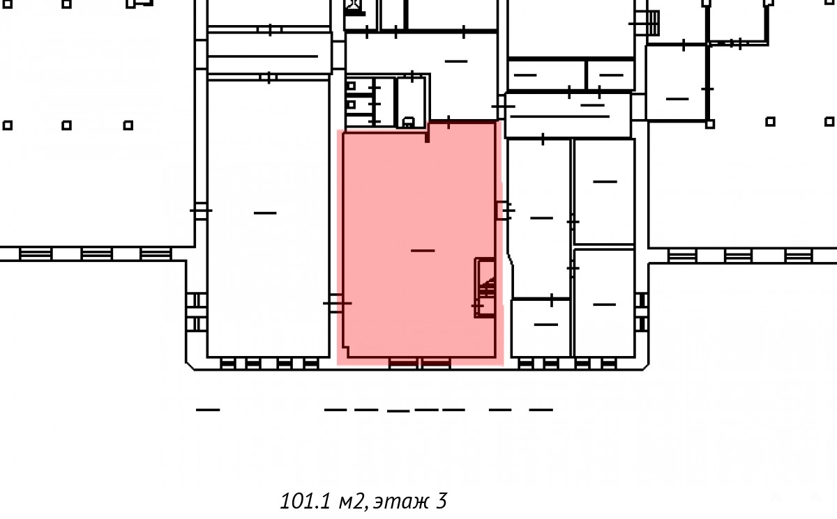
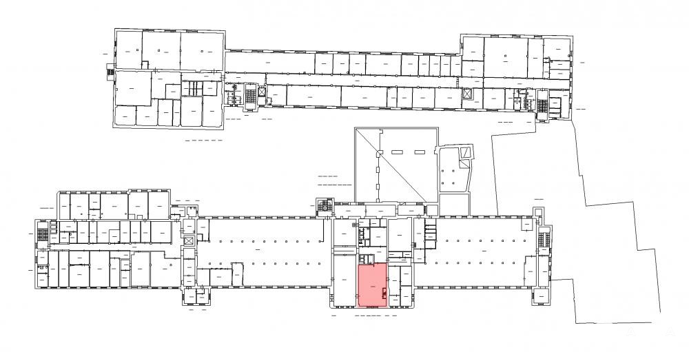
101 м²
Площадь
3
Этаж

Поделиться

Добавить в избранное

Аренда производственного помещения в Кировском районе.

Адрес объекта: ул. Промышленная,   дом 5, этаж 3.
Ближайшая станция метро "Нарвская " в 5 минутах ходьбы.

Общий метраж: 101, 1 кв. м.
Высота потолка: 3, 6 м.
С/у рядом на этаже.
Есть грузовой лифт 2, 4*1, 9*2, 1м, г/п 3 т.

В помещение заведены высокоскоростной интернет и цифровая телефония.
Установлены датчики пожарной безопасности.
Проход/проезд по магнитным пропускам.

Объект находится под круглосуточной охраной.

Дата обновления: 29 ноября 2025