Аренда производственного помещения

42 212 ₽/мес

9 469 ₽ за м²/год

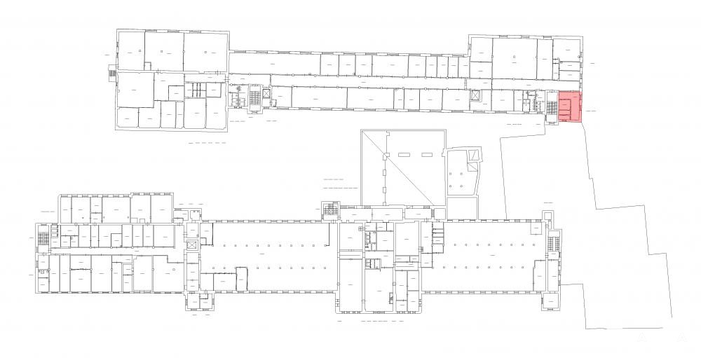
54 м²
Площадь
3
Этаж

Поделиться

Добавить в избранное

Сдается в аренду производственный блок площадью 53, 5 кв. м.
Ближайшая станция метро "Нарвская" расположена в 5 минутах.

На территории технопарка проход осуществляется по магнитным картам, возможен круглосуточный режим работы.
На объекте ведется круглосуточная охрана.

Оснащение: отопление, освещение, выделенная электрическая мощность.

Дата обновления: 30 октября 2025