Аренда производственного помещения

193 038 ₽/мес

9 588 ₽ за м²/год

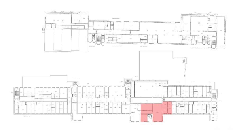
242 м²
Площадь
4
Этаж

Поделиться

Добавить в избранное

Предлагаем в аренду от собственника помещение под мастерскую на территории технопарка "Промышленная".
Ближайшая станция метро - "Нарвская" (в 5 минутах).

Блок площадью 241.6 кв. м расположен на 4-м этаже.
Оснащение: выделенная электроэнергия, освещение, отопление.

Дополнительные услуги: высокоскоростной интернет, цифровая телефония.
На территории есть парковка.

Звоните и записывайтесь на просмотр!

Дата обновления: 30 октября 2025