Аренда производственного помещения

65 717 ₽/мес

10 789 ₽ за м²/год

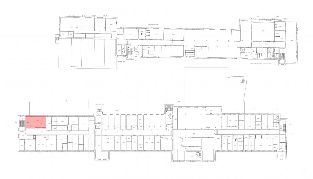
73 м²
Площадь
4
Этаж

Поделиться

Добавить в избранное

Аренда производственного помещения 73, 1 кв. м по адресу: улица Промышленная, дом 5.

Этаж: 4-й этаж современного производственного комплекса.
Транспортная доступность: шаговая доступность от станции метро "Нарвская".
Структура помещения: состоит из трёх отдельных помещений.

Отделка:
*Надёжный линолеум на полу.
*Окрашенные стены.
*Декоративные панели.

Оснащение:
*Отопление.
*Освещение.
*Пожарная сигнализация.
*Выделенная мощность 20 кВт.

Инфраструктура:
*Грузовой лифт.
*Высокоскоростной интернет.
*Цифровая телефония.

Комфортные условия:
*Оборудованная парковка.
*Кафе на территории.

Безопасность:
*Круглосуточная охрана.
*Система видеонаблюдения.
*Пропускной режим.

Не упустите возможность арендовать современное производственное помещение в удобном районе города!
Создавайте свой бизнес в комфортных условиях с развитой инфраструктурой.

Дата обновления: 1 октября 2025