Аренда производственного помещения

26 098 ₽/мес

11 389 ₽ за м²/год

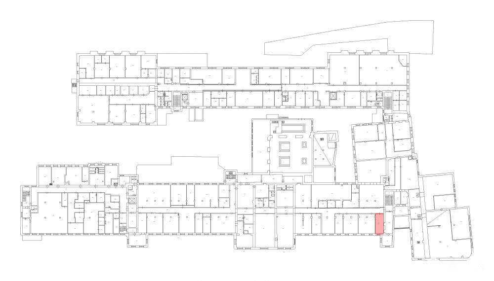
28 м²
Площадь
2
Этаж

Поделиться

Добавить в избранное

Аренда производственного помещения 27, 5 кв. м на Промышленной ул., дом 5.
Этаж: 2.
Класс помещения: C.

Отделка помещения:
*Стены- окрашены.
*Пол- кафельное покрытие.

Инженерные системы:
*Выделенная электроэнергия.
*Система освещения.
*Центральное отопление.

Система безопасности:
*Круглосуточная охрана.
*Проход по картам.

Инфраструктура объекта:
*Охраняемая парковка.
*Кафе на территории.

Помещение идеально подходит для малого производства.
Удобное расположение у метро и развитая инфраструктура делают этот вариант привлекательным для бизнеса.

Дата обновления: 26 августа 2025