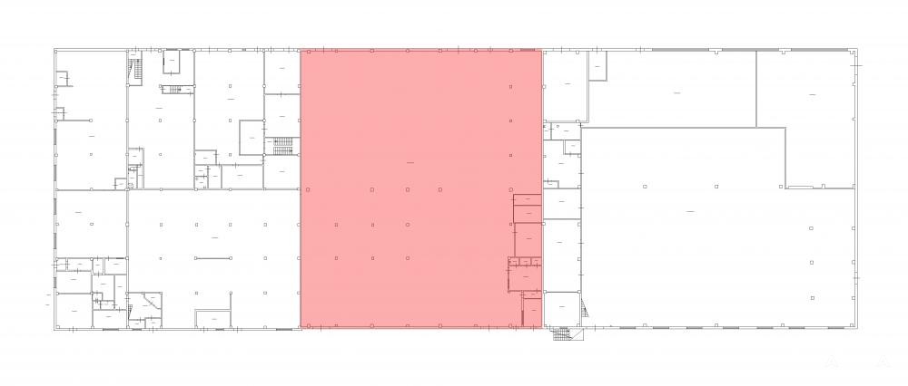
Аренда производственного помещения
2 849 893 ₽/мес
16 632 ₽ за м²/год
- 2 056 м²
- Площадь
- 1
- Этаж
Предлагаем в аренду производственный блок на 1 этаже здания на территории технопарка "Новикова".
В помещениях высокие потолки , беспылевое покрытие пола и роллетные ворота (4 шт.).
Имеются все необходимые для работы инженерные системы и коммуникации(ХВС, электроснабжение, теплоснабжение), интернет и телефония.
Территория находится под круглосуточной охраной с постоянным видеомониторингом периметра.
Система контроля и управления доступом позволяет вести учет рабочего времени сотрудников.
Датчики автономной системы пожаротушения берегут от возникновения чрезвычайных ситуаций.
Оборудована вместительная парковка с удобной зоной для маневрирования грузового транспорта.
С заботой о сотрудниках на территории работает кафетерий, поблизости есть различные магазины.
Комплекс находится в Приморском районе города, вблизи станции метро "Комендантский проспект".
Рядом пролегают крупные автомагистрали: Парашютная улица и Западный скоростной диаметр.
Дата обновления: 18 марта 2026