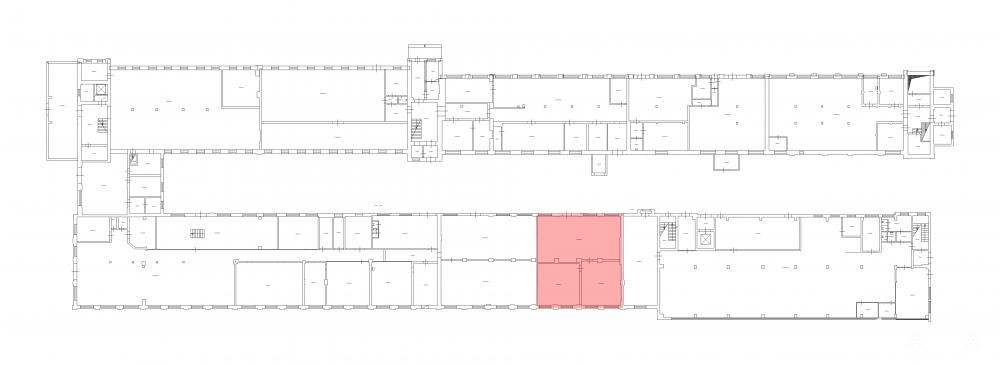
Аренда производственного помещения

279 915 ₽/мес

13 188 ₽ за м²/год

255 м²
Площадь
1
Этаж

Поделиться

Добавить в избранное

Аренда производственного помещения.
Адрес: Санкт‑Петербург, ул. Комсомола, дом 1–3.
Этаж: 1‑й.

Оснащение и коммуникации:
-Выделенная электрическая мощность;
-освещение;
-отопление;
-пожарная сигнализация.

Инфраструктура на территории:
-Столовая;
-парковка.

Расположение и транспортная доступность:
-Калининский район;
-в пешей доступности — станция метро "Площадь Ленина".

Условия аренды:
-Прямая аренда;
-возможна аренда офисного помещения на той же территории.

Приходите на осмотр — помещение готово к размещению производства или мастерской!

Дата обновления: 10 декабря 2025