Аренда производственного помещения

75 905 ₽/мес

9 588 ₽ за м²/год

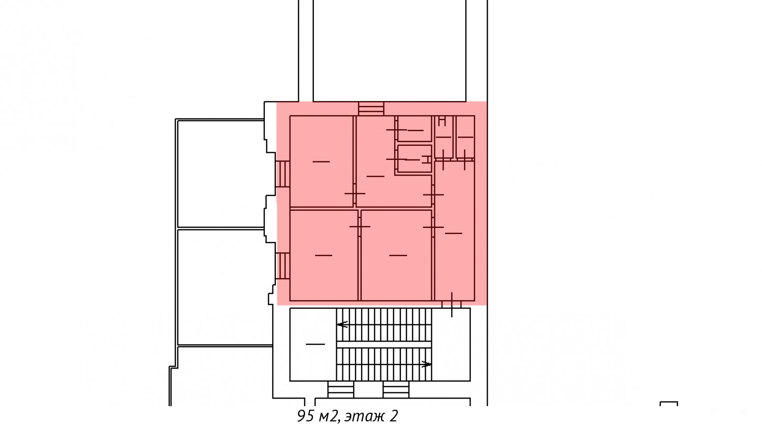
95 м²
Площадь
2
Этаж

Поделиться

Добавить в избранное

Производственные помещения в аренду от собственника.
Расположение: 2-й этаж производственного комплекса.
Транспортная доступность: пешая доступность от станции метро "Площадь Ленина".

Инженерные системы:
*Отопление — поддержание оптимального температурного режима.
*Освещение — достаточное для производственных процессов.
*Электроснабжение — выделенная мощность.
*Водоснабжение — ХВС и водоотведение.

Система безопасности:
*Круглосуточная охрана территории.
*Контроль доступа по магнитным картам.
*Видеонаблюдение.

Дополнительные преимущества:
*Парковка для грузового транспорта.
*Кафе на территории для персонала.
*Удобная логистика.

Помещение идеально подходит для:
*Мелкосерийного производства.
*Сборки изделий.
*Механической обработки.
*Швейного производства.
*Производственных мастерских.

Преимущества для производства:
*Готовность к запуску — помещение полностью оборудовано.
*Гибкие условия аренды.
*Развитая инфраструктура на территории.
*Удобная транспортная доступность.

Готовы обсудить условия аренды и организовать просмотр помещения с учетом специфики вашего производства.
Создайте эффективное производственное пространство в удобном районе города!

Дата обновления: 29 октября 2025