Аренда производственного помещения
105 159 ₽/мес
12 709 ₽ за м²/год
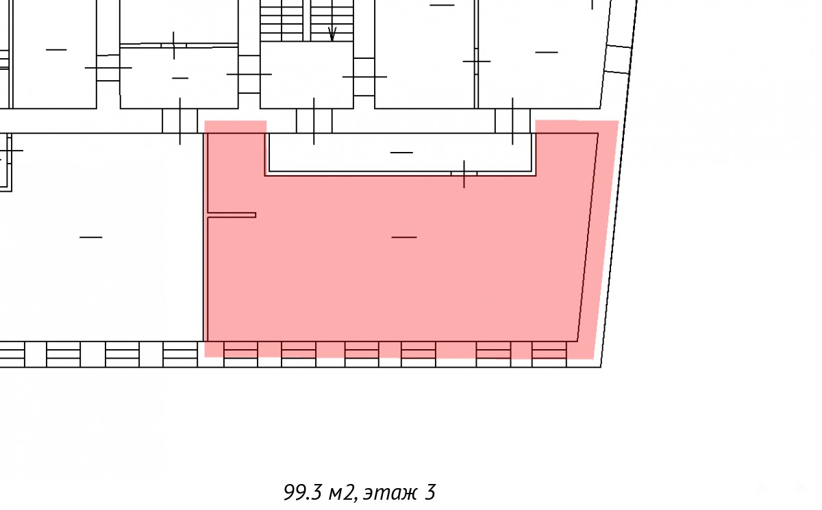
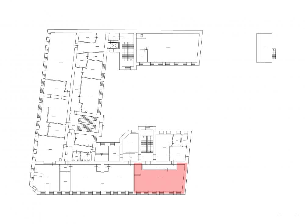
- 99 м²
- Площадь
- 3
- Этаж
В бизнес-центре "Рассвет" (Дегтярная ул., 5–7) на 3 этаже доступны помещения, которые могут подойти для творческой студии.
До метро "Площадь Восстания" 15 минут пешком.
Расположение: Центральный район, в 10 минутах от Московского вокзала и главных проспектов (Невский, Суворовский, Лиговский).
Инфраструктура: кафе, ресторан, фитнес-центр, фотосалон, платёжные терминалы, наземная парковка.
Безопасность: круглосуточная охрана, видеонаблюдение, пропускная система (арендаторы проходят по магнитным картам).
Коммуникации: в помещениях есть телефонные линии, оптоволоконный интернет, пожарная сигнализация.
Возможна перепланировка и косметический ремонт.
Дополнительно оплачиваются: интернет, телефония.
Дата обновления: 14 ноября 2025