Аренда производственного помещения

27 889 ₽/мес

10 020 ₽ за м²/год

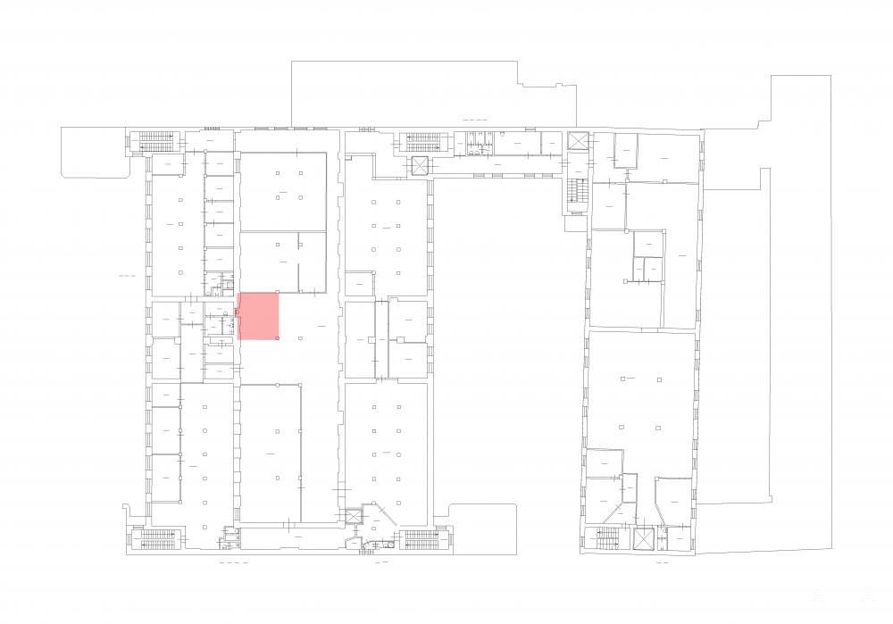
33 м²
Площадь
2
Этаж

Поделиться

Добавить в избранное

Аренда производственного помещения на территории технопарка "Боровая".
Площадь помещения: 33, 4 кв. м.
Этаж: 2-й.
Ближайшая станция метро: "Обводный Канал".

Технические характеристики:
*Высота потолков- 3, 37 м.
*Грузовой лифт- грузоподъёмность 0, 5 т.

Инженерные системы:
*Электроснабжение.
*Отопление.
*Освещение.

Безопасность:
*Круглосуточная охрана.
*Система контроля доступа.

Идеально подходит для:
*Малых производств.
*Производственных мастерских.
*Лабораторных работ.
*Мелкосерийного производства.

Дополнительные преимущества:
*Готовое решение- помещение полностью оборудовано.
*Расположение- в технопарке с развитой инфраструктурой.
*Логистика- удобный доступ к основным транспортным артериям.

Для получения подробной информации и организации просмотра помещения, пожалуйста, свяжитесь с нами.
Мы поможем организовать удобное время для просмотра и ответим на все интересующие вопросы.

Дата обновления: 17 сентября 2025