Аренда помещения свободного назначения

191 608 ₽/мес

11 976 ₽ за м²/год

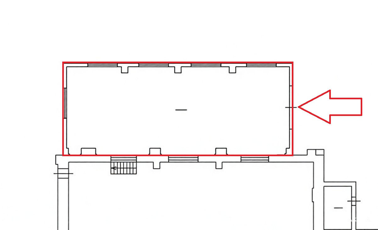
192 м²
Площадь
1/1
Этаж

Поделиться

Добавить в избранное

Код объекта: 7907 Аренда производственно-складского помещения в Калининском районе - рядом с метроПлощадь Ленина - 1, 3 км Адрес: Санкт-Петербург, Калининский район, ул. Комсомола, д. 1-3, литера АМ Площадь: 191, 8 м на первом этаже Высота потолков: 8, 5 м Пол: ровный бетонный Грузовые ворота: 4 4 м Кран-балка грузоподъёмностью 3 т Стены: бетонные, окрашены Окна: стеклоблоки Пожарная сигнализация, круглосуточная охрана Проход и проезд - по электронным картам доступа На территории: столовая и парковка Возможен круглосуточный режим работы Помещение неотапливаемое Удобное транспортное расположение. Подходит для размещения производства, склада. Индивидуальные условия аренды. Арендная ставка: 999 руб./м/мес (с НДС).Коммунальные услуги оплачиваются отдельно. Свяжитесь для организации осмотра или получения дополнительной информации.

Дата обновления: 19 ноября 2025