Аренда помещения свободного назначения

695 680 ₽/мес

8 863 ₽ за м²/год

942 м²
Площадь
4/4
Этаж

Поделиться

Добавить в избранное

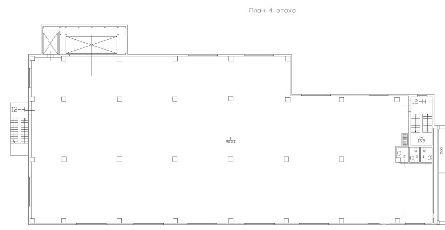
Код объекта: 7903 Аренда помещения под склад или производство площадью942, 4 мв деловом квартале Каскад. Класс зданияB+. Расположение:Невский район, ул. Мельничная 18, ближайшая ст.м.пллощадь Ал. Невского. Для ваших сотрудников организованБЕСПЛАТНЫЙ комфортабельный автобусот/до метро Площадь Александра Невского в утренние и вечерние часы. Характеристики помещения: Площадь:942, 40 кв. м. Этаж:4-й Высота потолков:4 м Нагрузка на пол:до 1000 кг/м Электропитание:до 88 кВт, с возможностью увеличения Водоснабжение:ХВС и ГВС Вентиляция:приточно-вытяжная Пожарная безопасность:пожарная сигнализация , помещение оборудовано системой пожаротушения, датчиками дыма. Грузовые лифты:подъемник до 3 тонн, грузо-пассажирский лифт Зона погрузки/разгрузки:для фур Арендная ставка 700 руб/м2., Арендная плата 695 680 в т.ч.НДС 5% Коммунальные платежи:Оплачиваются отдельно, по действующим городским тарифам. Инфраструктура бизнес-центра: Круглосуточная охраняемая территория и парковка. Идеально для организации склада, логистического центра или производственного цеха в самом сердце города с отличной транспортной доступностью.

Дата обновления: 18 октября 2025