Аренда помещения свободного назначения

Санкт-Петербург, Малый проспект Васильевского острова, 88

248 810 ₽/мес

33 175 ₽ за м²/год

90 м²
Площадь
2/4
Этаж

Поделиться

Добавить в избранное

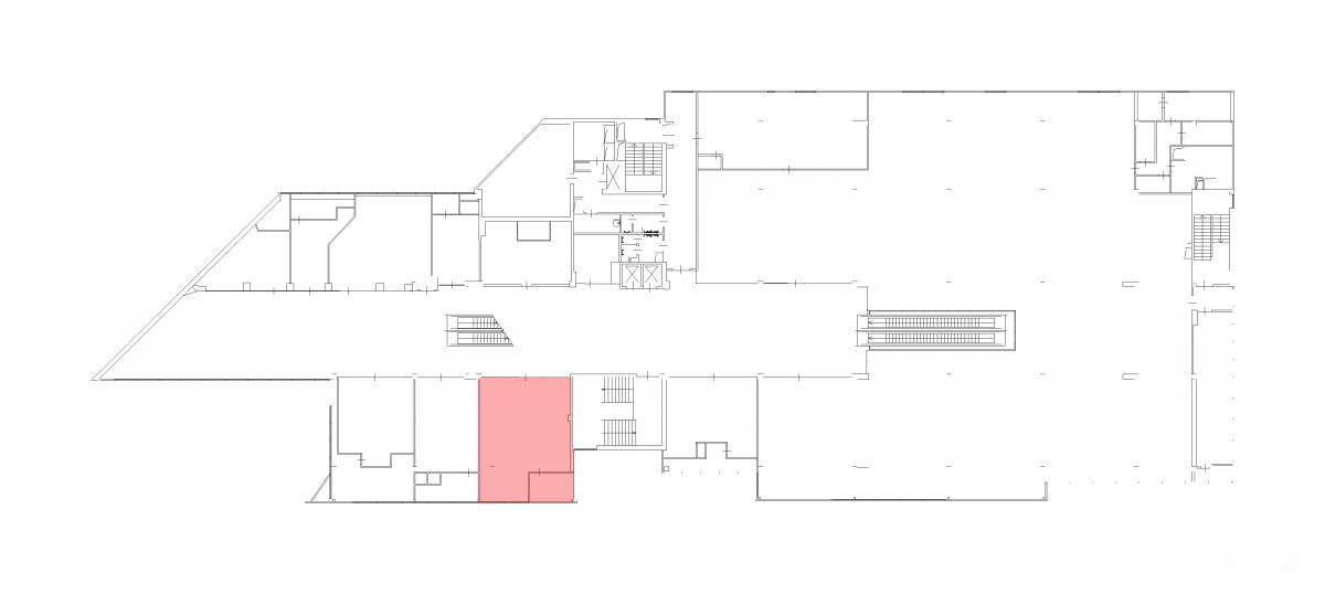
Код объекта: 7896 Сдаётся в аренду торговое помещение 89, 5 м в ТРК Шкиперский Молл на 2 этаже Отличное предложение на Васильевском острове! Просторное помещение на 2 этаже современного торгово-развлекательного комплекса с высокой проходимостью. Главные преимущества: Идеальное расположение:Васильевский остров, Малый пр. ВО, д. 88. Всего15 минут пешкомот метро Приморская. Готовый трафик:Высокая посещаемость гарантирована благодаря расположенным рядом сетевым магазинам и современному кинотеатру на этаже. Несколько входов:Максимальная доступность для клиентов благодаря отдельному входу, входу прямо из галереи ТЦ . Всё подключено:Помещение полностью подготовлено: электроэнергия, отопление, освещение. Доступны услуги интернета, телефонии и круглосуточной охраны. Условия аренды: Площадь:89, 5 м Ставка:2780 руб./м(включая НДС) Коммунальные услуги:оплачиваются дополнительно. Договор: бессрочный. Стоимость аренды 248 810 рублей в месяц

Дата обновления: 20 сентября 2025