32 079 ₽/мес

17 989 ₽ за м²/год

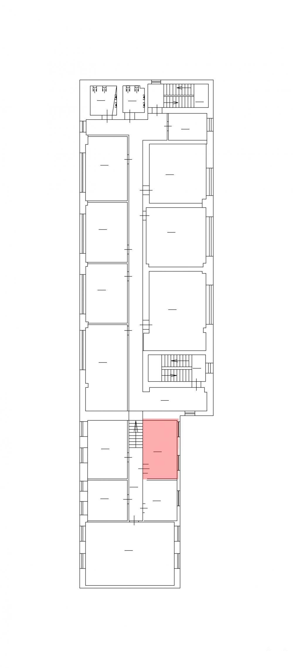
21 м²
Площадь
2
Этаж

Поделиться

Добавить в избранное

Предлагается в аренду офисное помещение площадью 21, 4 кв. м в Московском районе.
Адрес: ул. Заозёрная, д. 8, 2 этаж.

Прекрасный вариант для кабинета массажа.
Помещение правильной формы можно зонировать и обустроить раздевалку.
В бизнес-центре размещено большое количество компаний разной направленности, сотрудники которых также могут быть вашими клиентами.

Во всём здании выполнена качественная отделка.

Вы сами контролируете количество своих посетителей – проход на территорию осуществляется строго по пропускам.
Ведётся круглосуточная охрана и видеонаблюдение.

Для комфортной работы арендаторов в помещение поведены необходимые инженерные коммуникации: освещение, отопление и пожарная сигнализация.
Дополнительно подключаются услуги связи: высокоскоростной интернет и цифровая телефония.
Также предоставим доступ к охраняемой парковке.

Отличная транспортная доступность обусловлена пролегающими рядом набережной Обводного канала и Московским проспектом.
Ближайшая станция метро "Технологический институт" находится в 15 минутах ходьбы.

Кафе и магазины располагаются в пешей доступности от здания.

Готовы рассмотреть вашу деятельность для размещения в офисе.
Звоните!

Дата обновления: 9 декабря 2025