35 937 ₽/мес

13 188 ₽ за м²/год

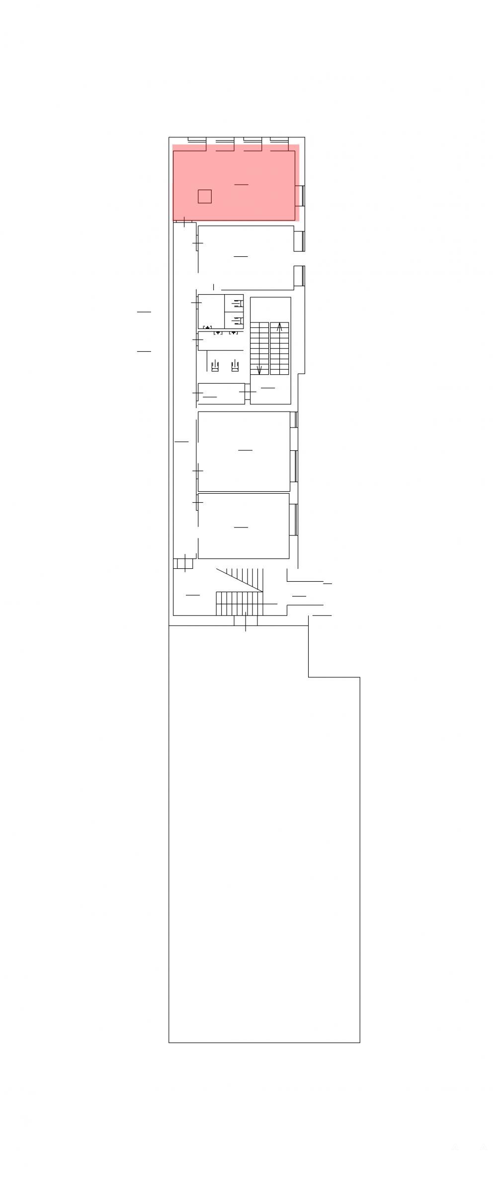
33 м²
Площадь
4
Этаж

Поделиться

Добавить в избранное

В Московском районе города сдаётся в аренду офис площадью 32.7 кв. м.

4-й этаж БЦ.
Кабинетная планировка.
Помещение оснащено электричеством, отоплением, освещением.

Дополнительно арендаторам предоставляются высокоскоростной интернет и цифровая телефония.
Здание находится под круглосуточной охраной.

Действует система СКУД.
На территории есть столовая, парковка.

Поблизости пролегают набережная Обводного канала, Московский проспект и Киевская улица.
В 10 минутах ходьбы находится станция метро "Технологический институт".

Дата обновления: 1 октября 2025