36 128 ₽/мес

11 088 ₽ за м²/год

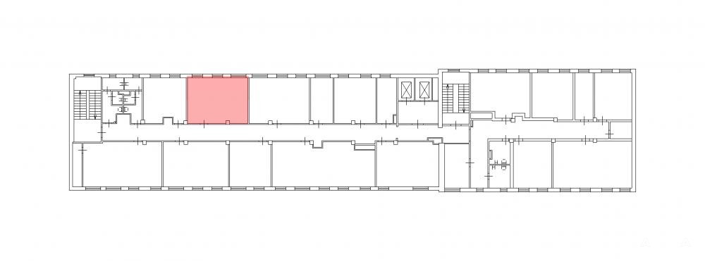
39 м²
Площадь
3
Этаж

Поделиться

Добавить в избранное

В Василеостровском районе города в аренду сдаётся помещение площадью 39.1 кв. м под студию красоты.

Расположение: ул. Уральская, дом 19, 3-й этаж.
2 лифта.
Мокрая точка - напротив помещения.

Качественная отделка: обои под покраску, линолеум на полу, 3 окна с видом на внутренний двор.
Оснащение: пожарная сигнализация, высокоскоростной интернет, цифровая телефония.

На территории БЦ действует пропускной режим.
Проход осуществляется по магнитным пропускам.
Режим работы БЦ: с 7:00 до 22:00.

Более подробную информацию можете узнать у менеджеров колл-центра.

Дата обновления: 18 ноября 2025