Аренда офисного помещения

Санкт-Петербург, Троицкая площадь Петроградской стороны, 1

154 624 ₽/мес

15 335 ₽ за м²/год

121 м²
Площадь
2/5
Этаж

Поделиться

Добавить в избранное

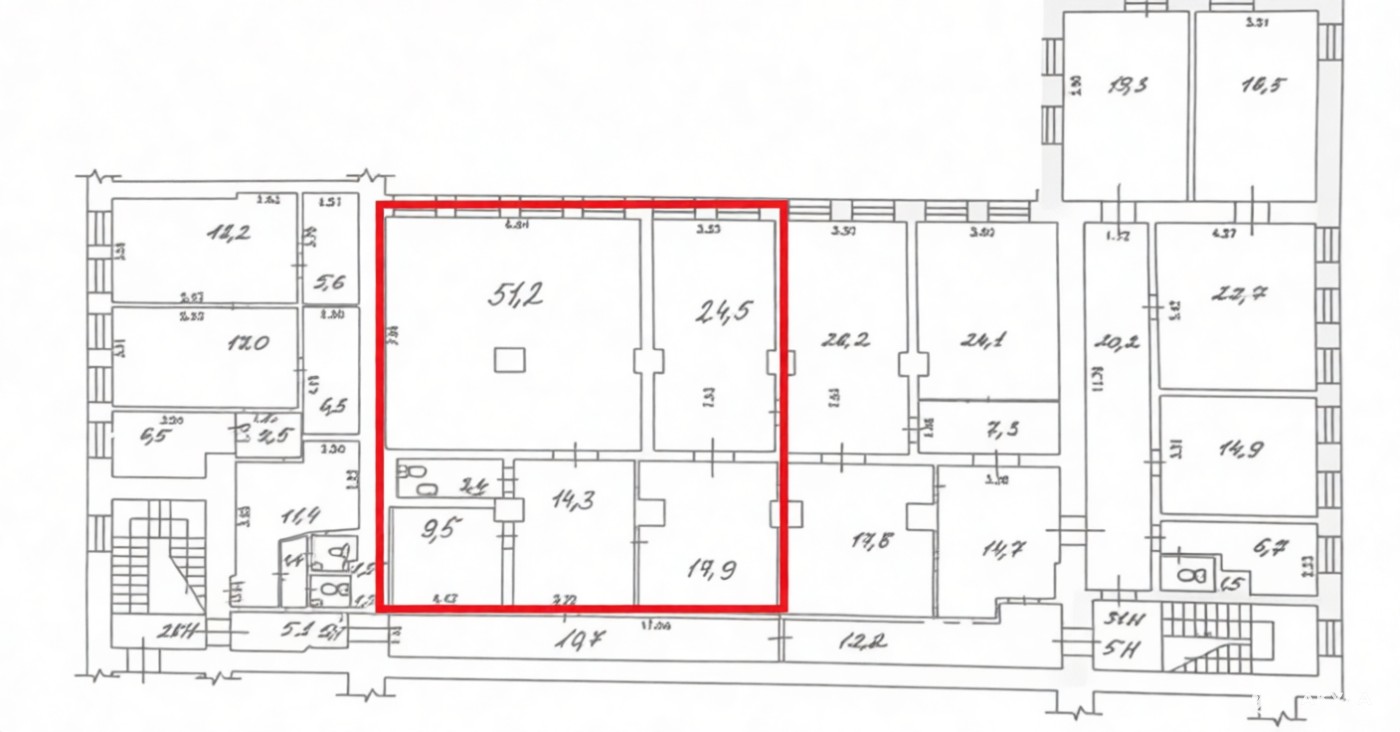
Код объекта: 7909 Аренда офиса на Троицкой площади (Петроградская сторона) Адрес: Троицкая пл., П.С., дом 1, Блок офисов 5Н (офис №217, с/у №217А) Площадь: 120, 8 м | Этаж: 2/8 Стоимость: 154 624 руб/мес (включая НДС и коммунальные платежи) ✅ Планировка: ✔️ Кабинет с окном - 51, 2 м. ✔️ Кабинет с окном - 24, 5 м. ✔️ Кабинет без окна - 17, 9 м. ✔️ Кухня-зона - 9, 5 м. ✔️ Санузел - 3 м. ✔️ Холл-приемная - 14, 3 м. Условия: Все коммунальные платежи включены (электричество, ХВС/ГВС, отопление, обслуживание). Готовое помещение для бизнеса в центре Петроградской стороны. Удобная транспортная развязка, развитая инфраструктура района.

Дата обновления: 9 декабря 2025