Аренда офисного помещения

11 867 ₽/мес

10 789 ₽ за м²/год

13 м²
Площадь
2
Этаж

Поделиться

Добавить в избранное

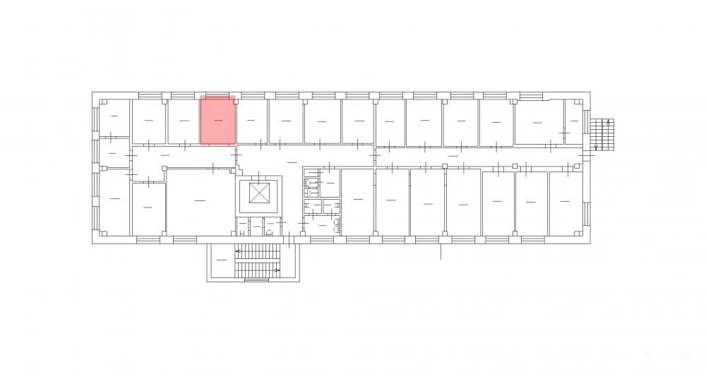
В Кировском районе в аренду сдаётся помещение площадью 13, 2 кв. м под художественную мастерскую.
2-й этаж здания.
Кабинетная планировка.

Большим плюсом для художника будет большое окно, которое обеспечивает естественное освещение.
Площади кабинета хватит для размещения стеллажей для инструментов.

Выполнена стандартная отделка: линолеум на полу, светлые окрашенные стены, подвесной потолок.
Проведены необходимые инженерные коммуникации: отопление, освещение.

Дополнительно подключаются цифровая телефония и высокоскоростной интернет.
Для арендаторов доступна парковка на охраняемой территории.

Объект находится под круглосуточной охраной, ведётся видеонаблюдение.
Проход осуществляется по электронным картам доступа.

Вам будет удобно добираться на любом виде транспорта:
*В 15 минутах ходьбы находится станция метро "Нарвская".
*В непосредственной близости расположены автобусные остановки.
*Недалеко пролегают улица Маршала Говорова и проспект Стачек.

Дата обновления: 8 ноября 2025