Аренда офисного помещения

27 064 ₽/мес

12 588 ₽ за м²/год

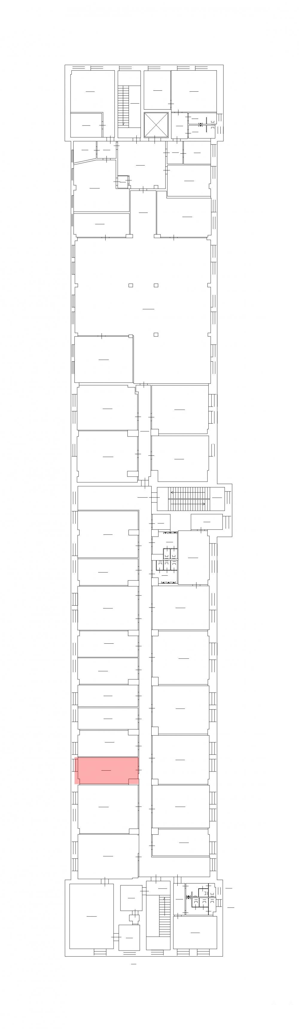
26 м²
Площадь
4
Этаж

Поделиться

Добавить в избранное

Офис в аренду от собственника!
Площадь: 25, 8 кв. м.
Адрес: ул. Швецова, д. 41, 4 этаж.

Отличный вариант для аудиторской компании.
Площади помещения хватит, чтобы разместить необходимую офисную мебель и технику.

В кабинете выполнена качественная отделка в светлых тонах.

Инженерное оснащение: освещение, отопление, выделенная электрическая мощность.
В целях безопасности установлены противопожарные датчики.

Для арендатора доступно подключение высокоскоростного интернета и цифровой телефонии.

По всей территории ведётся круглосуточная охрана и видеонаблюдение.
Доступ осуществляется по пропускам.
Действует система контроля и управления доступом, благодаря которой можно вести учёт рабочего времени сотрудников.

На первом этаже бизнес-центра работает столовая.
На территории есть охраняемая парковка для сотрудников и посетителей.

Удобное расположение бизнес-центра позволяет легко добираться как на личном, так и на общественном транспорте.
В непосредственной близости пролегают улица Маршала Говорова и проспект Стачек.
Ближайшая станция метро "Нарвская" находится всего в 15 минутах ходьбы.

Дата обновления: 8 ноября 2025