Аренда офисного помещения

113 273 ₽/мес

15 589 ₽ за м²/год

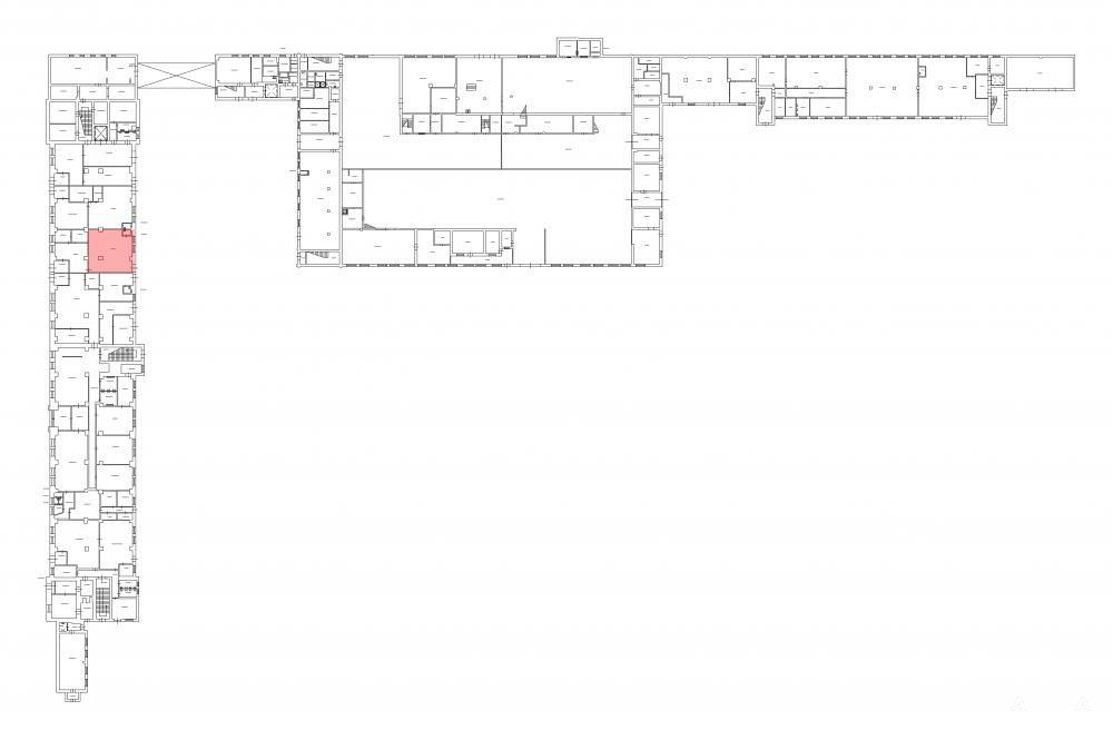
87 м²
Площадь
1
Этаж

Поделиться

Добавить в избранное

Собственник предлагает в аренду офисный блок площадью 87.2 кв. м.
Помещения с евроремонтом расположены на первом этаже.

В здании проведены интернет и цифровая телефония, установлена система противопожарной сигнализации.
В распоряжении арендатора: кафе и парковка на территории делового комплекса.

Объект находится под круглосуточной охраной.
Блок расположен в Кировском районе города в пешей доступности от станции метро "Нарвская".

Дата обновления: 30 октября 2025