Аренда офисного помещения

69 833 ₽/мес

9 589 ₽ за м²/год

87 м²
Площадь
3
Этаж

Поделиться

Добавить в избранное

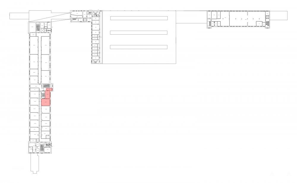
Сдаётся в аренду офисное помещение у станции метро "Нарвская".
Расположение: ул. Швецова, д. 41.

Общая площадь помещения - 87.4 кв. м.
3-й этаж.
Кабинетная планировка.

Выполнен евроремонт.
Окна выходят во двор.
Оснащение: пожарная сигнализация, освещение, отопление.

Территория охраняется и находится под видеонаблюдением.
Проход осуществляется по электронным картам доступа.

Звоните и записывайтесь на просмотр!

Дата обновления: 5 сентября 2025