Аренда офисного помещения

60 364 ₽/мес

10 189 ₽ за м²/год

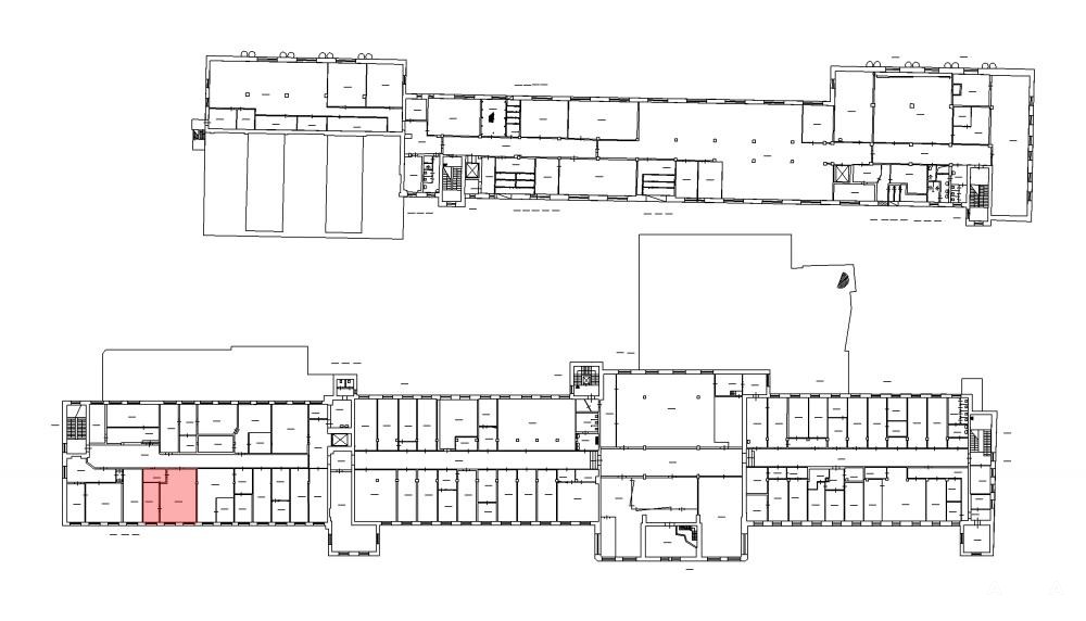
71 м²
Площадь
4
Этаж

Поделиться

Добавить в избранное

Предлагается в аренду офисный блок с чистовой отделкой.
Проведены все необходимые коммуникации, интернет и телефония.

Помещения площадью 71, 1 кв. м находятся на Промышленной улице, дом 5.
Станция метро "Нарвская" находится в 5 минутах ходьбы.

Действует система СКУД, ведется круглосуточная охрана.
Для сотрудников на территории имеются кафе и парковка.

Дата обновления: 2 апреля 2026