Аренда офисного помещения

Санкт-Петербург, Левашовский пр-кт., д. 12

807 250 ₽/мес

30 000 ₽ за м²/год

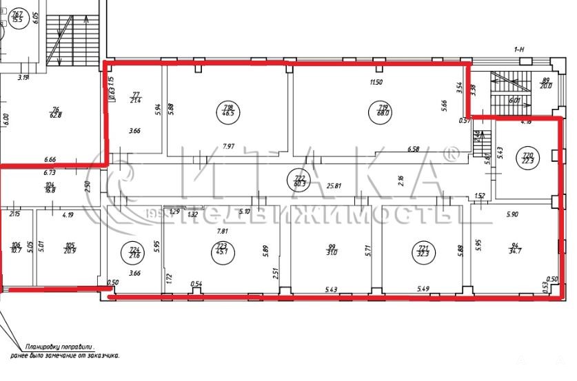
323 м²
Площадь
2/7
Этаж

Поделиться

Добавить в избранное

4-02255 Без комиссии!
Сдаётся в аренду блок помещений в БЦ "Левашовский". Блок помещений 322.9квм, расположено на 2 этаже 7 этажного дома. Блок состоит из 10 офисов с ремонтом. Вход в БЦ с улицы, помещение с отделкой.. В БЦ охрана , лифт, есть кафе. Открытая парковка. Подходит под сферу услуг, под офис.. Звоните! Покажет по договорённости. Есть другие варианты! Лариса.

Дата обновления: 24 января 2026